Proiectul de casă din lemn tip A-frame îmbină eficiența și flexibilitatea într-un design modern și atractiv. Stilul A-frame, cu acoperișul său în formă de „A” înalt și abrupt, este cunoscut pentru utilizarea inteligentă a spațiului și estetica simplă, dar elegantă. Această casă oferă un spațiu interior luminos și aerisit, adaptabil în funcție de nevoi.
Cu o suprafață construită de 47,19 m² și o suprafață utilă de 32 m² la parter, locuința include un open space generos de 26,06 m² pentru living și bucătărie, precum și o baie de 5,94 m². Deasupra, o supantă de 9 m² oferă un spațiu suplimentar, perfect pentru odihnă sau depozitare. Acest concept de casă se poate adapta diferitelor nevoi și condiții climatice, oferind atât confort, cât și eficiență termică.
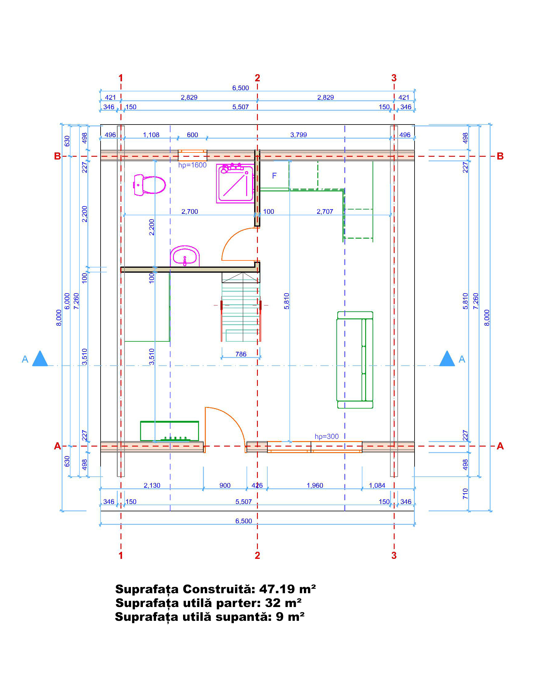
Detalii Constructive:
Suprafața construită: 47,19 m²
Suprafața utilă parter: 32 m²
Suprafața utilă supantă: 9,00 m²
- Open Space (Living + Bucătărie): 26,06 m²
- Baie: 5,94 m²
- Dormitor Supantă: 9,00 m²














