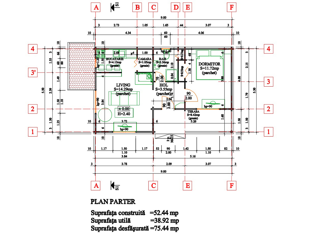
Acest proiect de casă din lemn, cu un design minimalist, oferă o soluție ingenioasă pentru o casă de vacanță sau ca o anexă în grădină ta. Având o suprafață construită de 49,5 mp și una utilă de 38,92 mp, spațiile interioare sunt concepute cu grijă pentru a asigura confort și funcționalitate. La intrare, un hol de 3,55 mp te întâmpină, oferind un sentiment de căldură și deschidere. Livingul generos de 14,29 mp devine inima casei, perfect pentru întâlniri cu familia sau prietenii, iar bucătăria de 4,13 mp, eficient organizată, încurajează gătitul și socializarea. Cămara de 1,05 mp completează spațiul, asigurând că toate ingredientele sunt la îndemână, fără a aglomera suprafețele de lucru. Baia compactă, având o suprafață de 3,36 mp, dispune de spațiul necesar pentru a fi utilată corespunzător, iar dormitorul generos de 11,72 mp oferă un refugiu intim, ideal pentru odihnă. O terasa de 8,42 mp extinde spațiul de locuit în aer liber, creând un loc minunat pentru a savura cafeaua de dimineața.
Detalii constructive
Suprafața Construită: 49,5 m²
Suprafața Utilă: 38,92 m²
Suprafața Desfășurată: 49,5 m²
Descriere Suprafață Interioară:
Hol: 3,55 m²
Living: 14,29 m²
Bucătărie: 4,13 m²
Cămara: 1,05 m²
Baie: 3,36 m²
Dormitor: 11,72 m²
Terasă: 8,42 m²








