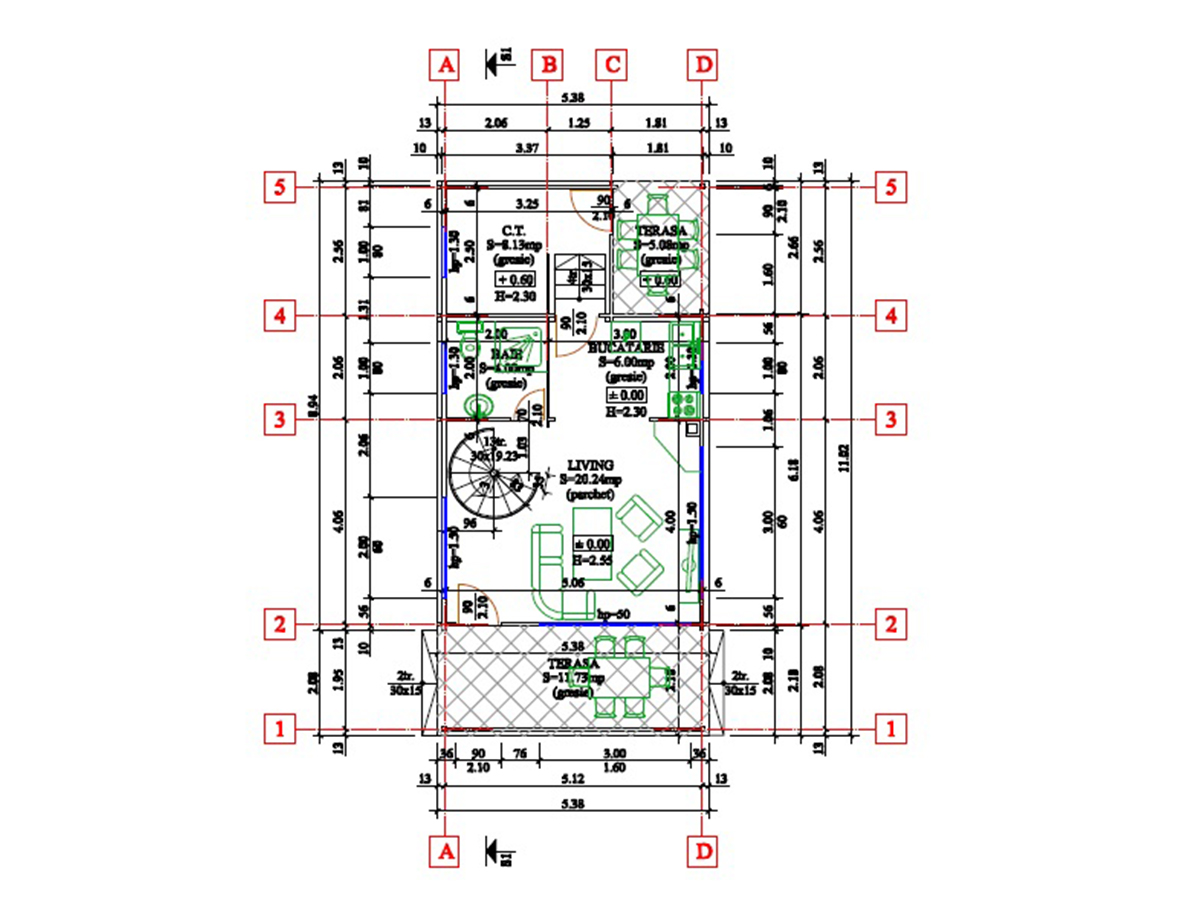
Această casă din lemn, cu o suprafață construită de 70,59 mp și o suprafață utilă interioară de 51,67 mp, este ideală pentru cei care caută un refugiu compact, eficient și conectat cu natura. La parter, casa oferă un spațiu generos de living de 20,24 mp, conectat cu o bucătărie deschisă de 6 mp, perfectă pentru un stil de viață modern și aerisit. Tot aici se află o baie de 4 mp și o cameră tehnică de 8,13 mp, destinată echipamentelor necesare pentru spălare și uscare. Parterul este completat de două terase, una de 11,73 mp și alta de 5,08 mp, ideale pentru relaxare în aer liber.
Mansarda găzduiește un dormitor deschis de 11,50 mp cu un spațiu de dressing de 1,80 mp și acces la un balcon de 2,11 mp, oferind intimitate și o priveliște plăcută. Designul acestei case din lemn îmbină funcționalitatea și confortul într-un cadru natural, fiind perfectă pentru o viață liniștită sau escapade de weekend.
Descriere Suprafață Parter:
Terasă 1. – 11,73 m²
Living – 20,24 m²
Bucătărie deschisă – 6 m²
Baie – 4 m²
Cameră Tehnică – 8,13 m²
Terasă 2 – 5,08 mp
Descriere Suprafață Mansardă:
Dormitor deschis – 11,50 m²
Spațiu Dressing Dormitor – 1,80 m²
Balcon – 2,11 m²














