Skip to main content
proiect-casa-din-lemn-50mp
proiect-casa-din-lemn-model-modernmp
proiect-casa-din-lemn-camping-doua-camere
PlayPause
proiect-casa-din-lemn-50mp
proiect-casa-din-lemn-model-modernmp
proiect-casa-din-lemn-camping-doua-camere
previous arrow
next arrow
plan-casa-din-lemn-camping
plan-casa-din-lemn-camping
PlayPause
Exit full screenEnter Full screen
plan-casa-din-lemn-camping
plan-casa-din-lemn-camping
previous arrow
next arrow
Tip construcție: Case Log House
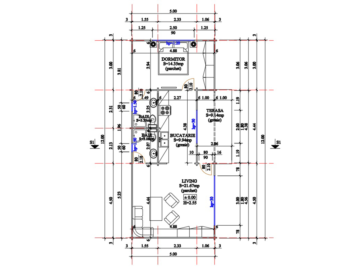
Suprafață utilă totală: 52,39 m²
Suprafață construită: 60 mp
Dimensiuni: 12 x 6 metri
Suprafață utilă parter: 52,39 m²
Suprafață construită desfasurată: 61,53 m²
Terasă: 9,14 m²

Această casă din lemn, cu o suprafață construită desfășurată de 61,53 mp și o suprafață utilă de 52,39 mp, este proiectată pentru a oferi confort într-un spațiu compact și bine organizat. Zona de zi cuprinde un living generos de 21,67 mp, conectat cu o bucătărie de 9,94 mp, creând un spațiu deschis și luminos, ideal pentru activitățile zilnice. Casa dispune de două băi — una de 3,08 mp, accesibilă pentru oaspeți, și o baie de 3,35 mp, care completează funcționalitatea dormitorului principal de 14,35 mp, oferind intimitate și confort.

Terasa de 9,14 mp extinde spațiul de locuit în exterior, oferind un loc plăcut pentru relaxare în aer liber, fie că e vorba de momentele dimineții sau de seri liniștite. Această locuință din lemn este o alegere excelentă pentru cei care doresc un refugiu confortabil, bine compartimentat și armonizat cu natura.

Detalii Constructive:

Suprafață construită desfășurată – 61,53 m²
Suprafață utilă interioară – 52,39 m²
Terasă – 9,14 m²

Descriere Suprafete Interioare
Living – 21,67 m²
Bucătărie – 9,94 m²
Baie – 3,08 m²
Dormitor – 14,35 m²
Baie – 3,35 m²
Terasă – 9,14 m²

Variante de constructie

Toate construcțiile din lemn pot fi realizate din 3 tipuri de pereți: Pereți simpli, Pereți lambrisați, Pereți dubli. Puteti citi mai jos, avantajele fiecărei variante de construcție.

Varianta 1

Pereți Simpli din dulapi de lemn de 40 mm sau de 60 mm grosime

Perete din dulapi masivi de 40 mm sau 60 mm grosime, îmbinare dublă nut și feder pe verticală și fixare prin chertare pe orizontală la colțuri

De la 380 Euro : Pereți Exteriori Simpli și Pereți Interiori Simpli de 60 mm grosime

Grosime perete 60 mm – Valoare coeficient transfer termic 1,583 W/m2 K

De la 350 Euro : Pereți Exteriori Simpli și Pereți Interiori Simpli de 40 mm grosime

Grosime perete 40 mm – Valoare coeficient transfer termic 2,093 W/m2 K

Acest tip de perete permite adăugarea ulterioară a izolației, fie pe fața interioară, fie pe cea exterioară. Ulterior, suprafața poate fi finisată prin lambrisare sau cu un sistem de tencuială decorativă, specifică stilului clasic. Este important ca o față a peretelui să rămână neacoperită, pentru a permite lemnului să respire în mod natural.

Varianta 2

Pereți Exteriori Simpli Lambrisați pe interior

De la 500 Euro

Perete Exterior de 60 mm grosime, rezervă pentru Izolația ignifugă de 100 mm grosime și Lambriu la interior cu grosimea de 20 mm Pereți Interiori de 60 mm grosime
Grosime perete 180 mm – Valoare coeficient transfer termic 0,303  W/mK

De la 470 Euro

Perete Exterior de 40 mm grosime, rezervă pentru Izolația ignifugă de 100 mm grosime și Lambriu la interior cu grosimea de 20 mm. Pereții Interiori pentru compartimentare de 40 mm grosime.
Grosime perete 160 mm – Valoare coeficient transfer termic 0,319 W/mK

Perete simplu, lambrisat pe interior și izolat

  1. Dulapi masivi de 40 sau 60 mm grosime.
  2. Folie anticondens.
  3. Structură montanți izolație.
  4. Izolație ignifugă de minim 100 mm grosime.
  5. Folie barieră de vapori.
  6. Lambriu interior de 20 mm grosime și colțare de finalizare.

Atenție

Pentru Varianta Lambrisării, construcția se realizează în două etape – două faze de montaj la locul destinației. Lambrisarea se realizează în a doua fază de montaj, deoarece construcția are nevoie de cel puțin 5 luni de tasare a zonelor de îmbinare.

Manopera montajului construcției la fața locului este inclusă în preț!

Varianta 3

Pereți Exteriori Dubli de 40 mm sau 60 mm grosime

De la 650 Euro

Cu două rânduri de pereți exteriori de 60 mm grosime și rezervă pentru izolația ignifugă între pereți de 100 mm grosime

Pereți Interiori de 60 mm grosime

Grosime exterioară 220 mm – Valoare coeficient transfer termic 0,254  W/mK

De la 600 Euro

Cu două rânduri de pereți exteriori de 40 mm grosime și rezervă pentru izolația ignifugă între pereți de 100 mm grosime

Pereți Interiori pentru compartimentare de 40 mm grosime

Grosime perete 180 mm – Valoare coeficient transfer termic 0,276  W/m2 K

Perete Exterior Dublu

  1. Dulapi masivi de 40 sau 60 mm grosime.
  2. Folie anticondens.
  3. Structură montanți izolație.
  4. Izolație ignifugă de minim 100 mm grosime, plasată între cei doi pereți de aceeași grosime.
  5. Folie barieră de vapori.
  6. Dulapi masivi de 40 sau 60 mm grosime.

Costul include

  1. Bază materială – lemn masiv de esență ușoară, tip molid, culoare total natur, uscat până la 14% umiditate stabilizată (între 14% – 18%, depinde de umiditatea perioadei în care construcția este realizată), uscare parțial naturală și parțial forțată;
  2. Tratament (Bochemit Opti F+ transparent) pentru protecția preventivă a lemnului împotriva mucegaiului, a ciupercilor și a insectelor dăunătoare;
  3. Finisaj de exterior cu Lac transparent pe bază de apă, aplicat într-un singur strat (tratament pentru protejarea lemnului masiv specific pentru exterior);
  4. Finisaj de interior cu Lac transparent pe bază de apă, aplicat într-un singur strat (tratament pentru protejarea lemnului masiv specific pentru interior);
  5. Uși interioare – model clasic, culoare total natur, din lemn masiv și parțial stratificat, echipate cu feronerie și chedere de etanșare pentru falț;
  6. Pereți exteriori, formați din dulapi lemn masiv în funcție de Varianta Constructivă necesară a pereților exteriori, cu îmbinare în dublu nut și feder pe orizontală, chertați pe colțuri vertical;
  7. Pereți interiori despărțitori (compartimentări interioare), formați din dulapi lemn masiv în funcție de Varianta Constructivă necesară a pereților interiori despărțitori, cu îmbinare în dublu nut și feder pe orizontală, chertați pe colțuri vertical;
  8. După caz, pentru Etaj sau pentru Mansardă, Dușumea de interior din lemn masiv, culoare total natur, cu grosime de 40 mm, cu îmbinare pe lățime prin simplu nut și feder, peste grinzi aparente (vizibile), și colțare de finalizare. Duşumeaua de interior, pentru Parter, este opțională (nu intră în preț), iar detaliile acesteia se regăsesc mai jos, la Elemente opţionale;
  9. Grinzi din dulapi lemn masiv pentru zonele de rezistență la acoperiș, culoare total natur;
  10. După caz, grinzi și căpriori din material lemnos lamelar multistrat pentru zonele de rezistență la acoperiș, culoare total natur;
  11. Acoperiș tip astereală, culoare total natur, cu finisaj și formă tip lambriu cu grosime de 20 mm, îmbinat în simplu nut și feder, dispus pe grinzi aparente (vizibile). Casete separatoare peste astereală pentru rezerva Izolației ignifuge de 100 mm grosime;
  12. Carton bitumat cu ardezie pentru ruperea legăturilor între lemn și beton;
  13. Elemente speciale de consolidare a construcției pe placa betonată;
  14. Montaj izolații ignifuge necesare;
  15. Manoperă montaj construcție la fața locului;
  16. Montajul învelitoarei care se plasează peste acoperiș, doar dacă aceasta este din Țiglă Ceramică sau Tablă Ambutisată și dacă acoperișul va fi realizat în maxim 4 ape.

Atenție!

Pentru posibile grosimi mai mari sau mai mici necesare, altele decât cele prezentate, se va realiza o Analiză de Cost separată, cât și în cazul în care se vor dori alte modele pentru ușile Interioare.

Cota de înălțime reprezintă cota standard. Alte cote de înălțime, cât și Acoperișurile cu mai multe coame, dolii și cornișe, lucarne sau velux-uri, vor face obiectul unei Analize de Cost aparte.

Costul nu include

Beneficiarul trebuie să asigure următoarele materiale/servicii cu Societate Autorizată în domeniul respectiv, deoarece acestea reprezintă materiale/servicii auxiliare necesare finalizării construcției și nu țin de domeniul nostru de activitate. De asemenea, ne oferim disponibilitatea informării spre furnizorii/producătorii necesari sau, în unele cazuri, putem evalua în funcție de alegerile și preferințele tale și introduce în costul inițial al construcției casei:

  1.  Proiectul Autorizat, cu detaliile necesare pentru execuție și Autorizația de Construire.Proiectul este un cost separat față de construcție. Arhitectul este cel care realizează Proiectul. Se lucrează și cu arhitectul clientului. De asemenea, putem informa cu arhitecți și, după caz, designeri de interior, colaboratori;
  2. Ignifugare, după caz, operație care va fi stabilită anterior construirii.Prin ignifugare se mărește rezistența lemnului la ardere. Practic, într-un caz de incendiu, se îngreunează aprinderea lemnului, se reduce viteza de ardere a acestuia și viteza de propagare a flăcărilor pe suprafața protejată.
    De asemenea, zonele cu risc de incendiere sunt echipate cu material izolant ignifug după cum se specifică, acesta fiind însoțit de documente care să ateste conformitatea și garanția producătorului;
  3. Tâmplăria exterioară ( uși / ferestre / luminatoare ). Montajul este asigurat de către echipa noastră.
  4. Dușumea pentru parter sau parchet laminat. Montajul este asigurat de către echipa noastră.
  5. Transport construcție către locul destinației, dacă construcția va fi realizată pe o rază mai mare de 50 km față de sediul de producție;
  6. Învelitoarea, folia anticondens şi folia barieră de vapori, jgheaburile și accesoriile – se plasează peste Acoperiș: Țiglă Ceramică, Tablă Ambutisată, Olană etc., în funcție de ceea ce se va dori sau, după caz, în funcție de ceea ce se va impune de către zona în care construcția va fi amplasată;
  7. Costul montajului Învelitoarei, doar dacă aceasta este alta decât Țiglă Ceramică sau Tablă Ambutisată sau dacă Acoperișul va fi realizat cu o complexitate mai mare decât în 4 ape, cost care se analizează în funcție de complexitatea învelitoarei și complexitatea construcției;
  8. Folia barieră de vapori şi, după caz, Folia anticondens, pentru pereţi, în funcție de Varianta Constructivă necesară a pereților şi în funcţie de izolaţia dorită;
  9. Izolația ignifugă dorită, naturală sau nu – vată minerală, termoizolaţie din lână de oaie, fibră de lemn, celuloză, cânepă etc., care se plasează în zonele cu risc de incendiere – sub învelitoare, sub dușumeaua parterului și, după caz, între pereții lambrisați sau între pereții dubli, în funcție de Varianta Constructivă necesară a pereților;
  10. Alte pachete de finisaj (baiț pentru dorințe suplimentare de culoare, lacuri cerate pigmentate, lacuri poliuretanice de trafic sau uleiuri), decât cel standard oferit în cost (lacuri transparente pe bază de apă) și costul manoperii necesare;
  11. Placa betonată și fundația, după caz, în funcție de Proiect;
  12. Instalații electrice, sanitare și termice;
  13. Dacă construcția va fi realizată pe o rază ce nu depăşeşte 50 km față de sediul de producție, manopera montajului construcției la fața locului este inclusă în preț (manoperă montaj), iar Beneficiarul trebuie să asigure o masă şi apă / zi persoanelor necesare pentru montaj sau costul pentru a asigura societatea noastră aceste servicii. Termenul zilelor necesare, cât și numărul de persoane necesare, se analizează în funcție de complexitatea construcției;14. Dacă construcția va fi realizată pe o rază mai mare de 50 km față de sediul de producție, manopera montajului construcției la fața locului este inclusă în preț (manoperă montaj), mai puțin transportul, cazarea, mesele necesare şi apă / zi persoanelor necesare pentru montaj sau costul pentru a asigura societatea noastră aceste servicii. Termenul zilelor necesare, cât și numărul de persoane necesare, se analizează în funcție de complexitatea construcției.

Atenție

Societatea noastră este Autorizată pe domeniul Producției și Montajului Construcțiilor din Lemn.
Casa poate fi realizată “la cheie”, din perspectiva domeniului nostru de activitate.
Pentru celelalte materiale/servicii auxiliare necesare, pe care beneficiarul trebuie să le asigure, putem informa cu Societăți Autorizate în domeniul respectiv. De asemenea, în unele cazuri, putem evalua, în funcție de alegerile și de preferințele tale, și introduce în costul inițial al construcției casei.

Elemente opționale:

● Tâmplăria exterioară ( uși, ferestre, luminatoare ) este opțională și nu este inclusă in costurile afișate. Se poate opta pentru tâmplărie din lemn masiv iar costul se stabilește în funcție de suprafețe, finisaj și modelul dorit.

● Duşumeaua de interior, pentru Parter, este opțională (nu intră în preț) – Cost 50 Euro/mp suprafață construită – Dușumea de interior din lemn masiv, culoare total natur, cu grosime de 20 mm, cu îmbinare pe lățime prin simplu nut și feder. Casete separatoare pentru rezerva Izolației ignifuge de 50 mm grosime – izolaţie asigurată de către Beneficiar – și colțare de finalizare.

De asemenea, se asigură Manopera montajului acesteia, doar dacă aceasta este Duşumea produsă de către Societatea noastră sau dacă aceasta este Parchet laminat.

● Pentru alte cazuri de folosință a spațiului interior care necesită un trafic mai intens, se poate analiza aplicarea, pe dușumea, unui strat suplimentar de Lac pentru trafic.

● În cazul în care construcția nu este pe întindere parter, Scara Interioară pentru acces la Etaj sau pentru acces la Mansardă, face parte din discuții ulterioare și nu intră în preț, deoarece nu se cunoaște modelul dorit.

● De asemenea, posibile Uși Culisante ale posibilelor Spații pentru Dressing, Spații pentru Depozitare, Spații pentru Cămară etc., fac parte din discuții ulterioare și nu intră în preț, deoarece nu se cunoaște modelul dorit, dacă conțin și sticlă sau nu etc.

Vrei oferta personalizata ?
Contacteaza-ne si impreuna dam contur proiectului tau !

Close Menu
Cereți ofertă